YAMAN PREFABRİK ÇELİK YAPI

Tüm dünyadaki mimari trendleri, yapı yönetmeliklerini ve müşteri fikirlerini dikkate alan firmamız prefabrik tek katlı konutlarda standart projeler oluşturduğu gibi müşteri odaklı çalışmasıyla isteğe bağlı projeler de hazırlamaktadır. Gerek bireysel olsun gerek toplu konut çalışması her binaya aynı özen ve hassasiyetle yaklaşan YAMAN PREFABRİK ÇELİK YAPI konut sektöründe adından söz ettiren bir firmadır. Prefabrik evlerde yaşam kalitenizi ve konforunuzu arttırmak için sürekli arge ve ürge çalışmalarımız devam etmektedir.


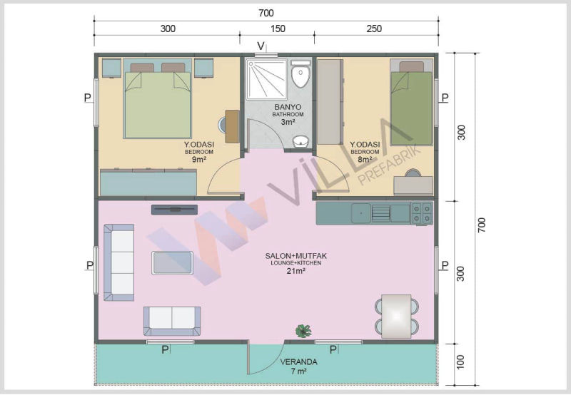
MODEL KODU : VKP 2


METREKARE : 21 m²

MONTAJ GARANTİSİ

??? YIL

SERVİS GARANTİSİ

??? YIL

ÜCRETSİZ MONTAJ

DÜZCE İLİNDE

FİYAT TEKLİFİNİZİ
NASIL İSTERSİNİZ ?

DETAYLI BİLGİ

Konteyner Ev 21 m² evler daha çok inşaat gibi işçilerin kullanılması için yapılmaktadır.

Konteyner Ev 21 m² evlerde depreme dayanıklı olarak yapılmaktadır. Aynı diğer prefabrik evlerde olduğu gibi üretilmekte ve hiçbir fark olmamaktadır. Bu evler daha şehir dışından gelen işçilerin çalıştıkları yerlerde konaklamaları için yapılmaktadır. En çok bu nedenle tercih edilmektedir. Bir Konteyner Ev 21 m² yaklaşık olarak kullanım süresi elli ile yüz yıl arasında değişmektedir. Bunun nedeni ise Konteyner Ev 21 m² yapılırken kullanılan malzemenin kaliteli olup olmadığı, ustaların yapmış oldukları işçilikleri ve evin kullanılma durumu bu süreyi uzatmakta ya da kısaltmaktadır. Eğer eviniz yapılırken kaliteli malzemeler kullanıldı ise, usta işçiliğini en iyi şekilde yaptı ise ve en önemlisi siz evinizi güzel ve bakımlı bir şekilde baktı iseniz o zaman prefabrik evinizin ömrü yüz yıl kadar olmaktadır. Ancak bunların aksi bir durumu mevcut ise o zaman evinizin ömrü en fazla yaklaşık olarak elli yıl olacaktır. Ömrü biten bir prefabrik evi yenilemek size çok da fazla bir maliyete neden olmayacaktır. Çünkü daha önce yapılırken kullanılan temel eşyalarının birçoğu tekrardan kullanılacaktır. Bu durum da sizin için maliyeti düşürücü bir etkiye sahip olmaktadır. Prefabrik evinizin ömrünü daha da uzatmak isterseniz o zaman dikkat etmeniz gereken ve yapmanız gereken olaylar bulunmaktadır. Evinizin temel betonuna önem vermeniz evinizin ömrünü uzatacaktır. Kaliteli malzemelerin kullanılması ömrünü uzatacaktır. Evinizin çatı malzemelerine önem vermeniz evinizin ömrünü uzatacaktır. Özellikle iç ve dış cephe duvarlarının kaliteli ve uzun ömürlü malzemeden seçilmesi evinizin ömrünün uzamasını sağlayacaktır. Evinizin çelik iskeletini güçlendirmeniz evinizin ömrünü uzatacaktır. Evin bakımlarının zamanın da ve ihmal edilmeden yapılması evinizin ömrünü uzatacaktır. Evinizin sel, su, fırtınanın olduğu yerlerde kurulması evinizin ömrünü oldukça azaltacaktır. Bu nedenle bu tip yerlerde kurmamaya özen göstermeniz gerekmektedir.

Bu nedenle aynı prefabrik evlerde olduğu gibi Konteyner Ev 21 m² da kullanım süresi elli ya da yüz yıl gibi bir ortalama sahip olmaktadır.

Alt Taşıma Konstrüksiyonu : 1.5 mm Kalınlığında özel form verilmiş galvaniz “C” kullanılarak kontrüksiyon oluşturulur.
Üst Taşıma Kontrüksiyonu : 1.5 mm Kalınlığında özel form verilmiş galvaniz “C” kullanılarak kontrüksiyon oluşturulur.
Alt Şase : 2 mm Kalınlığında özel form verilmiş galvaniz kullanılarak konstrüksiyon oluşturulur.
Üst Şase : 2 mm Kalınlığında özel form verilmiş galvaniz kullanılarak kontrüksiyon oluşturulur.
Köşe Direkleri : 3 mm Kalınlığında özel form verilmiş galvaniz kullanılarak kontrüksiyon oluşturulur.
Dış Duvarlar : 0,50 mm kalınlığında, mikro lambri baskı, boyalı galvaniz sac arası 40 mm kalınlığında 16kg/m3 yoğunluğunda polistren köpük kullanılır.
İç Duvarlar : 0,50 mm kalınlığında, mikro lambri baskı, boyalı galvaniz sac arası 40 mm kalınlığında 16kg/m3 yoğunluğunda polistren köpük kullanılır.
İç Yüzey Tavan Kaplama : 10mm Beyaz, yüksek kalitede Pvc lambri kullanılır.
Zemin Kaplama : 16 mm Kalınlığında betopan levha üzerine 2 mm kalınlığında PVC mİneflo.
Çatı İzolasyon : 80mm 14 kg/m3 Kalınlığında şilte cam yünü kullanılır.
Çatı Kaplama : 0.50mm kalınlığında natural galvaniz trapez sac kullanılır.
İç Kapılar : 80 x 198 ebatında olup,kanatları çift taraflı mdf kapıdır.
Pencereler : 95 / 100 Ölçülerinde PVC Pencere
Menfez : (WC ve Banyo ünitelerinde, havalandırma maksatlı 30×20 cm ebatlarında kullanılır.

Bizi Sosyal Medyada Önerin